新築物件情報!(上松)

毎度、新築情報でスミマセン。。。
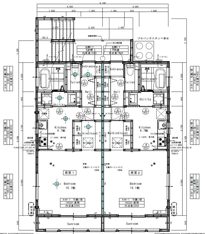
こちらは先日の物件とは異なり、
長野県立大学のすぐ北側で建築予定の新築物件です。
1DKタイプで、
キッチン4帖、洋室10帖、
サンルーム・ウォークインクローゼット付きです。
一人暮らし用ですがお風呂一坪タイプ、
3口ビルトインコンロ付きです。
現在建築中ですので、
8月~9月ころ完成予定です。
詳しい条件等が決まりましたら、
こちらでお知らせいたします。
もうしばらくお待ち下さい。。。
営業時間:10:00~17:00 定休日:日曜、1月~3月は水曜定休
